Схема підключення водопроводу у приватному будинку
Схем підключення може бути кілька, але принцип роботи не змінюється. Підключають нових споживачів до системи водопостачання двома методами:
Послідовне підключення. Даний метод найкраще підходить для невеликих заміських будинків, де витрата води буде не надто великою. Недолік такого підключення в тому, що вода надходить послідовно від одного споживача до іншого, і якщо кілька людей одночасно включили воду, то в останнього тиск буде дуже слабким, так як весь тиск йде на попередніх споживачів. Підключитися таким способом неважко, варто тільки прокласти трубу до певного місця, далі встановити трійник на кінці, і за такою схемою продовжувати з\’єднання.
Паралельне підключення. Підключення робиться за допомогою колектора, від якого і прокладають водопровід до споживачів.
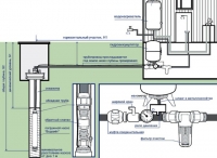
З чого складається система водопостачання:
-Фільтр.
-Насос.
-Гідроакумулятор.
-Джерело води.
-Трійник, для гарячої і холодної води.
-Колектор з запірною арматурою, для холодної води.
-Водонагрівач.
-Колектор для гарячого водопостачання.
Також може бути присутнім додаткова автоматика, для кращої роботи, і датчики тиску.
Свердловина або колодязь, як джерело води
Нерідко люди задаються питанням, звідки краще брати воду, чи буде це свердловина або колодязь.
Обидва варіанти мають як плюси, так і мінуси, наприклад, глибина колодязя близько десяти метрів, в той час як свердловина повинна досягати глибини в тридцять метрів. З іншого боку в колодязі вода забруднена сильніше, ніж у свердловині, отже, потрібно кілька фільтрів очищення.
Також для свердловини потрібен більш дорогий насос.
Для проведення водопостачання вам необхідно придбати таке обладнання:
-Ніпель.
-Запірна арматура.
-Труба.
-Погружной насос.
-Пятерник.
-Гідроакумулятор.
-Фільтр.
-Зворотний клапан.
Проведення водопостачання своїми руками
Для початку потрібно визначитися з необхідним діаметром труби. Даний етап дуже важливий, адже якщо діаметр підібраний не вірно, то будуть неприємні наслідки. Головним чином діаметр залежить від довжини трубопроводу. Якщо довжина менше тридцяти метрів, цілком вистачить двадцяти п\’яти міліметрової труби. Якщо більше тридцяти метрів, діаметр труби повинен складати тридцять два міліметри. Якщо довжина менше десяти метрів, двадцяти міліметрової труби буде достатньо. Також необхідно підібрати трубу для колектора, це дуже важливо. Для цього потрібно розрахувати кількість всіх кранів в будинку, з тим урахуванням, що один кран подає близько п\’яти літрів води протягом однієї хвилини. Отриману суму зіставте з наступними даними:
Труба з діаметром у двадцять п\’ять міліметрів подає близько тридцяти метрів води протягом однієї хвилини.
Труба з діаметром в тридцять два міліметри подає близько п\’ятдесяти метрів води протягом однієї хвилини.
Труба з діаметром в тридцять вісім міліметрів подає близько сімдесяти п\’яти метрів води протягом однієї хвилини.
Яку трубу використовувати для водопроводу у приватному будинку. Матеріал труб
При виборі труб звертайте увагу не тільки на їх діаметр, але і на матеріал, з якого вони зроблені. Найчастіше на ринках зустрічаються мідні, металопластикові, поліпропіленові та сталеві труби. Кожен варіант має плюси і мінуси.
Кращим варіантом прийнято вважати мідь, оскільки такий матеріал прослужить досить довго, до того ж він не піддається корозії, тільки ціна їх надто велика.
Металопластикові труби не піддаються механічним пошкодженням, однак по них не можна пускати воду з температурою більше дев\’яноста п\’яти градусів.
Сталеві труби прослужать довго і коштують не дуже дорого, проте одна проблема все ж є – корозія.
Поліпропіленові труби також дуже гарні, на них не впливають ніякі фактори. Мінус полягає в тому, що з\’єднувати їх потрібно паяльником.
Розводка водопроводу у приватному будинку своїми руками
Починати розведення потрібно з підключення труби до насоса за допомогою хомута. Далі ведеться прокладка до гідроакумулятора, який прийнято встановлювати у разі, якщо напір занадто низький, або коли трапляються перебої в подачі води. Після підключення до гідроакумулятора, встановлюють трійник з запірною арматурою, і від нього виробляється прокладка до водонагрівача і колектора для холодної води. Не забувайте про встановлення фільтрів. З бойлера прокладають водопровід до колектора з гарячою водою. Далі з колекторів проводиться розводка до споживачів. Далі встановлюється лічильник і манометр, але це робите не ви, а спеціальна служба.
При розведенні дотримуйтесь плану:
— Не зачіпайте будівельні конструкції.
— Труби повинні знаходитися від стін на відстані в два, три сантиметри.
— Робіть ухил для зливних кранів та гідроакумулятора.
— Обвід зовнішнього кута повинен проходити на відстані в півтора сантиметра від стіни, а внутрішнього – 4 сантиметри.
